Mieszkanie na sprzedaż Zielona Góra, Centrum

2 pokoje
52.10 m²
9 800,00 zł/m2
1 piętro
VN1-MS-6742
Oblicz ratę kredytu

510 580 zł

Mieszkanie na sprzedaż
Nowa oferta

Szczegóły oferty

Inwestycja ZIELONA GÓRA OS.ZACISZE ul. KRĘTA -ODDANIE 12/2025
Symbol oferty VN1-MS-6742
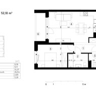
Powierzchnia 52,10 m²
Powierzchnia użytkowa [m2] 52,10 m²
Powierzchnia balkonów/tarasów 5,28 m²
Liczba pokoi 2
Liczba sypialni 1
Rodzaj budynku apartamentowiec
Piętro 1
Liczba pięter w budynku 5
Stan lokalu deweloperski
Liczba balkonów 1
Rok budowy 2026
Winda tak
Liczba wind 1
Usytuowanie środkowe
Pomieszczenia
Rodzaj kuchni aneks kuchenny - połączony z salonem
Liczba łazienek 1
Liczba WC 1
Liczba przedpokoi 1

Opis nieruchomości

ZADZWOŃ I UMÓW SIĘ NA BEZPŁATNĄ PREZENTACJĘ!
ZAPRASZAM DO WSPÓŁPRACY ---790-790-861---

OFERTA BEZPOŚREDNIA BRAK OPŁAT ZA POŚREDNICTWO -0%

2-POKOJOWE Z BALKONEM TYPU LOGGIA W APARTAMENTOWCU!!

W ofercie sprzedaży posiadamy 2-pokojowe mieszkanie o powierzchni łącznej 52,10 m2 znajdujące się na I piętrze nowoczesnego apartamentowca przy ul. Krętej. Nieruchomość składa się z salonu wraz z aneksem kuchennym o pow. 26,54 m2, sypialni o pow. 13,27 m2, łazienki 5,11 m2, pom. gospodarczego 2,00 m2 oraz przedpokoju 5,18 m2. Do mieszkania przynależy balkon typu loggia o pow. 5,28 m2.
Jest to propozycja skierowana dla osób ceniących sobie kompleksowość, wygodę i wysoki standard. Położenie w pobliżu ścisłego centrum miasta ale zarówno zacisznej części stanowi ciekawą ofertę zarówno dla osób poszukujących własnego M, jak i traktujących zakup nowego mieszkania jako inwestycję.
Lokalizacja pozwala na swobodny dostęp do bogatej infrastruktury miejskiej, m.in. dogodny dostęp do komunikacji miejskiej, centrum, sklepów. To wspaniała propozycja dla rodziny z dziećmi.

Termin zakończenia inwestycji: grudzień 2026 r.


Kupujący nie płaci podatku PCC ani prowizji dla biura!


Zapraszam do kontaktu! 790-790-861

Więcej zdjęć oraz danych technicznych oferty, na naszej stronie www.villa-nieruchomosci.com nr oferty 6742
Zainteresowała Cię ta oferta? Nie trać czasu, zadzwoń!
Zapraszam na prezentację 790-790-861 biuro 68-455-50-44
*** Bezpłatnie pomagamy przy uzyskaniu kredytu, w ofercie najlepsze banki!
*** Nasze biuro jest bezpieczne dla klienta posiadamy licencje nr 9994 nadaną przez Ministra Infrastruktury!!
*** Serdecznie zapraszamy do naszego biura: Zielona Góra, Al. Konstytucji
3 Maja 15
*** Więcej ciekawych ofert na
www.villa-nieruchomosci.com
*** Wszelkie podane przez Pośrednika informacje nie są ofertą w rozumieniu art.66 Kodeksu Cywilnego

 

Lokalizacja nieruchomości

Kalkulatory

Kalkulator kredytowy

Wysokość raty

PLN
%

Kalkulator kosztów

Taksa notarialna
(opłata notarialna)

Wniosek o wpis do KW

VAT od prowizji
agencji nieruchomości

VAT od taksy notarialnej
(opłaty notarialnej)

Prowizja agencji nieruchomości

Wypisy aktu notarialnego

Razem

Uwaga: mogą wystąpić dodatkowe opłaty za założenie księgi wieczystej oraz ustanowienie hipoteki.

PLN
PLN
PLN
PLN
PLN
%
PLN

Podobne oferty

Bez prowizji

Mieszkanie na sprzedaż

Zielona Góra, Centrum

3 pokoje 67 m2 9 359,70 zł/m2
Bez prowizji
Bez prowizji

Mieszkanie na sprzedaż

Zielona Góra, Centrum

3 pokoje 67 m2 9 359,75 zł/m2
Bez prowizji
Bez prowizji

Mieszkanie na sprzedaż

Zielona Góra, Centrum

3 pokoje 64 m2 9 362,48 zł/m2
Bez prowizji

Mieszkanie na sprzedaż

Zielona Góra, Centrum

2 pokoje 45 m2 9 800,00 zł/m2

Agent

Proszę wprowadzić poprawne imię i nazwisko
Proszę wprowadzić poprawny numer telefonu
Proszę wprowadzić poprawny adres e-mail
Proszę zaznaczyć wymagane zgody
Rozwiąż równanie:
20 7
Niepoprawny wynik