Mieszkanie na sprzedaż Zielona Góra, os. Tysiąclecia

3 pokoje
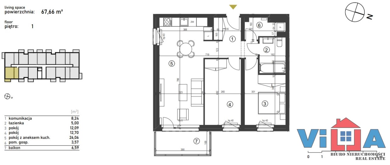
67.66 m²
9 900,00 zł/m2
1 piętro
VN1-MS-6727
Oblicz ratę kredytu

669 834 zł

Mieszkanie na sprzedaż

Szczegóły oferty

Symbol oferty VN1-MS-6727
Powierzchnia 67,66 m²
Powierzchnia użytkowa [m2] 67,66 m²
Powierzchnia balkonów/tarasów 6,59 m²
Liczba pokoi 3
Liczba sypialni 3
Rodzaj budynku apartamentowiec
Piętro 1
Liczba pięter w budynku 4
Stan lokalu deweloperski
Okna PCV 3 szyby, ciepły montaż
Balkon jest
Liczba balkonów 1
Rok budowy 2026
Winda tak
Liczba wind 1
Pomieszczenia
Rodzaj kuchni aneks kuchenny - połączony z salonem
Typ łazienki razem z wc
Liczba przedpokoi 1

Opis nieruchomości

ZADZWOŃ I UMÓW SIĘ NA BEZPŁATNĄ PREZENTACJĘ!
ZAPRASZAM DO WSPÓŁPRACY ---790-790-861---

3-POKOJOWE Z BALKONEM W APARTAMENTOWCU!!

OFERTA BEZPOŚREDNIA BRAK OPŁAT ZA POŚREDNICTWO -0%

W ofercie sprzedaży posiadamy
 3-pokojowy apartament o powierzchni łącznej 67,66m2 znajdujący się na I piętrze nowoczesnego apartamentowca przy ul. Stanisława Wyspiańskiego. Nieruchomość składa się z jasnego salonu wraz z aneksem kuchennym o pow. 26,06m2, dwóch sypialni o pow. 12,70 m2 oraz 12,09 m2, łazienki o pow. 5 m2, korytarza o pow. 8,24 m2, pomieszczenia gospodarczego o pow. 3,57 m2 oraz dużego balkonu.

NOWY POLAN - to kontynuacja, inwestycji cieszącej się dużą popularnością -  POLAN APARTAMENTY przy ul. Wyspiańskiego 17A.

To propozycja skierowana dla osób ceniących sobie kompleksowość, wygodę i wysoki standard. Położenie w pobliżu ścisłego centrum miasta stanowi ciekawą propozycję zarówno dla osób poszukujących własnego M, jak i traktujących zakup nowego mieszkania jako inwestycję.

Położenie przy ul. Wyspiańskiego pozwala na swobodny dostęp do bogatej infrastruktury miejskiej:
 * dogodny dostęp do komunikacji miejskiej (centrum przesiadkowe), dworca kolejowego i autobusowego,
 * bliskość infrastruktury rekreacyjnej: basen, tereny zielone - Park Tysiąclecia oraz Park Poetów,
 * w niedalekiej odległości Szpital miejski i przychodnie lekarskie
 * bliskie położenie szkół: Liceum Medyczne, Uniwersytet Zielonogórski, Liceum nr 7, Szkoła Muzyczna, szkoła podstawowa

Pod budynkiem zaprojektowano podziemną hale garażową z otwartymi miejscami postojowymi, a część miejsc postojowych będą miały przynależne komórki lokatorskie.


Termin zakończenia inwestycji: CZERWIEC 2026 r.

Kupujący nie płaci podatku PCC oraz opłat związanych z biurem nieruchomości !!!

Powierzchnia podana na rzucie mieszkania może różnić się minimalnie w opisie podanym przez biuro.


Zapraszam do kontaktu 790-790-861

Więcej zdjęć oraz danych technicznych oferty, na naszej stronie www.villa-nieruchomosci.com nr oferty 6727
Zainteresowała Cię ta oferta? Nie trać czasu, zadzwoń!
Zapraszam na prezentację 790-790-761 biuro 68-455-50-44
*** Bezpłatnie pomagamy przy uzyskaniu kredytu, w ofercie najlepsze banki!
*** Nasze biuro jest bezpieczne dla klienta posiadamy licencje nr 9994 nadaną przez Ministra Infrastruktury!!
*** Serdecznie zapraszamy do naszego biura: Zielona Góra, Al. Konstytucji
3 Maja 15
*** Więcej ciekawych ofert na
www.villa-nieruchomosci.com
*** Wszelkie podane przez Pośrednika informacje nie są ofertą w rozumieniu art.66 Kodeksu Cywilnego

 

Kalkulatory

Kalkulator kredytowy

Wysokość raty

PLN
%

Kalkulator kosztów

Taksa notarialna
(opłata notarialna)

Wniosek o wpis do KW

VAT od prowizji
agencji nieruchomości

VAT od taksy notarialnej
(opłaty notarialnej)

Prowizja agencji nieruchomości

Wypisy aktu notarialnego

Razem

Uwaga: mogą wystąpić dodatkowe opłaty za założenie księgi wieczystej oraz ustanowienie hipoteki.

PLN
PLN
PLN
PLN
PLN
%
PLN

Podobne oferty

Bez prowizji

Mieszkanie na sprzedaż

Zielona Góra, os. Tysiąclecia

4 pokoje 75 m2 9 700,00 zł/m2
Bez prowizji
Bez prowizji

Mieszkanie na sprzedaż

Zielona Góra, os. Tysiąclecia

3 pokoje 68 m2 9 800,00 zł/m2
Bez prowizji
Nowa oferta

Mieszkanie na sprzedaż

Zielona Góra, os. Tysiąclecia

4 pokoje 75 m2 9 900,00 zł/m2
Nowa oferta
Nowa oferta

Mieszkanie na sprzedaż

Zielona Góra, os. Tysiąclecia

3 pokoje 68 m2 9 900,00 zł/m2
Nowa oferta

Agent

Proszę wprowadzić poprawne imię i nazwisko
Proszę wprowadzić poprawny numer telefonu
Proszę wprowadzić poprawny adres e-mail
Proszę zaznaczyć wymagane zgody
Rozwiąż równanie:
11 2
Niepoprawny wynik