Mieszkanie na sprzedaż Zielona Góra, Centrum

3 pokoje
64.02 m²
9 362,48 zł/m2
1 piętro
VN1-MS-6720
Oblicz ratę kredytu

599 386 zł

Mieszkanie na sprzedaż
Nowa oferta

Szczegóły oferty

Inwestycja ZIELONA GÓRA OS.ZACISZE ul. KRĘTA -ODDANIE 12/2025
Symbol oferty VN1-MS-6720
Powierzchnia 64,02 m²
Powierzchnia użytkowa [m2] 64,02 m²
Powierzchnia balkonów/tarasów 6,66 m²
Liczba pokoi 3
Liczba sypialni 3
Rodzaj budynku apartamentowiec
Piętro 1
Liczba pięter w budynku 5
Stan lokalu deweloperski
Balkon jest
Liczba balkonów 1
Rok budowy 2025
Winda tak
Liczba wind 1
Usytuowanie środkowe
Pomieszczenia
Typ kuchni aneks kuchenny
Liczba łazienek 1
Liczba przedpokoi 1

Opis nieruchomości

ZADZWOŃ I UMÓW SIĘ NA BEZPŁATNĄ PREZENTACJĘ! 
ZAPRASZAM DO WSPÓŁPRACY ---790-790-861---

OFERTA BEZPOŚREDNIA BRAK OPŁAT ZA POŚREDNICTWO -0%
3-
POKOJOWE Z BALKONEM W APARTAMENTOWCU!!


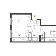
W ofercie sprzedaży posiadamy 3-pokojowy apartament o powierzchni łącznej 64,02 m2 znajdujący się na I piętrze nowoczesnego budynku z windą przy ul. Krętej. Nieruchomość składa się z salonu z aneksem kuchennym o pow. 26,37 m2, 2 sypialni o pow. 12,77 m2 i 12,45 m2, łazienki  o pow. 5,14 m2, korytarza 5,45 m2 oraz pomieszczenia gospodarczego o powierzchni 1,84 m2. Ponadto do mieszkania przynależy balkon 6,66 m2 oraz komórka lokatorska.

Mieszkanie
oddawane jest w standardzie deweloperskim. Do wykończenia we własnym zakresie.
Jest to propozycja skierowana dla osób ceniących sobie kompleksowość, wygodę i wysoki standard. Położenie w pobliżu ścisłego centrum miasta ale zarówno zacisznej części stanowi ciekawą ofertę zarówno dla osób poszukujących własnego M, jak i traktujących zakup nowego mieszkania jako inwestycję.

Lokalizacja pozwala na swobodny dostęp do bogatej infrastruktury miejskiej, m.in. dogodny dostęp do komunikacji miejskiej, centrum miasta, pobliskich sklepów. To wspaniała propozycja dla rodziny z dziećmi.


Termin zakończenia inwestycji: grudzień 2025 r.

Kupujący nie płaci podatku PCC oraz opłat związanych z biurem nieruchomości !!!


Zapraszam do kontaktu 790-790-861


Więcej zdjęć oraz danych technicznych oferty, na naszej stronie www.villa-nieruchomosci.com nr oferty
6720


Zainteresowała Cię ta oferta? Nie trać czasu, zadzwoń!
Zapraszam na prezentację 790-790-861 biuro 68-455-50-44
*** Bezpłatnie pomagamy przy uzyskaniu kredytu, w ofercie same najlepsze banki!
*** Nasze biuro jest bezpieczne dla klienta posiadamy licencje nr 9994 nadaną przez Ministra Infrastruktury!!
*** Serdecznie zapraszamy do naszego biura: Zielona Góra, Al. Konstytucji
3 Maja 15
*** Więcej ciekawych ofert na
www.villa-nieruchomosci.com
*** Wszelkie podane przez Pośrednika informacje nie są ofertą w rozumieniu art.66 Kodeksu Cywilnego

 

Lokalizacja nieruchomości

Kalkulatory

Kalkulator kredytowy

Wysokość raty

PLN
%

Kalkulator kosztów

Taksa notarialna
(opłata notarialna)

Wniosek o wpis do KW

VAT od prowizji
agencji nieruchomości

VAT od taksy notarialnej
(opłaty notarialnej)

Prowizja agencji nieruchomości

Wypisy aktu notarialnego

Razem

Uwaga: mogą wystąpić dodatkowe opłaty za założenie księgi wieczystej oraz ustanowienie hipoteki.

PLN
PLN
PLN
PLN
PLN
%
PLN

Podobne oferty

Oferta na wyłączność

Mieszkanie na sprzedaż

Zielona Góra, Centrum

3 pokoje 77 m2 6 201,55 zł/m2
Oferta na wyłączność
Bez prowizji

Mieszkanie na sprzedaż

Zielona Góra, Centrum

3 pokoje 67 m2 9 359,70 zł/m2
Bez prowizji
Bez prowizji

Mieszkanie na sprzedaż

Zielona Góra, Centrum

3 pokoje 67 m2 9 359,75 zł/m2
Bez prowizji
Bez prowizji

Mieszkanie na sprzedaż

Zielona Góra, Centrum

3 pokoje 64 m2 9 362,48 zł/m2
Bez prowizji

Agent

Proszę wprowadzić poprawne imię i nazwisko
Proszę wprowadzić poprawny numer telefonu
Proszę wprowadzić poprawny adres e-mail
Proszę zaznaczyć wymagane zgody
Rozwiąż równanie:
26 9
Niepoprawny wynik