Mieszkanie na sprzedaż Zielona Góra, os. Czarkowo

3 pokoje
73.71 m²
8 690,00 zł/m2
3 piętro
VN1-MS-6725
Oblicz ratę kredytu

640 540 zł

Mieszkanie na sprzedaż
Nowa oferta

Szczegóły oferty

Inwestycja ZIELONA GÓRA/OS.CZARKOWO/ MIESZKANIA GOTOWE DO ZAMIESZKANIA - ORAZ NOWE ETAPY
Symbol oferty VN1-MS-6725
Powierzchnia 73,71 m²
Powierzchnia użytkowa [m2] 73,71 m²
Powierzchnia balkonów/tarasów 6,00 m²
Liczba pokoi 3
Liczba sypialni 2
Rodzaj budynku blok
Technologia budowlana tradycyjna murowana
Standard
Piętro 3
Liczba pięter w budynku 4
Stan lokalu deweloperski
Okna PCV
Balkon jest
Rok budowy 2025
Winda tak
Liczba wind 1
Usytuowanie środkowe
Pomieszczenia
Rodzaj kuchni aneks kuchenny - połączony z salonem
Typ łazienki razem z wc

Opis nieruchomości

ZADZWOŃ I UMÓW SIĘ NA BEZPŁATNĄ PREZENTACJĘ ----790-790-861---

JESTEŚMY BEZPOŚREDNIM BIUREM SPRZEDAŻY - BRAK KOSZTÓW POŚREDNICTWA

PRZYTULNE 3-POKOJOWE MIESZKANIE Z BALKONEM W NOWYM BUDYNKU

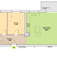
Nieruchomość o powierzchni 73,71 m2, usytuowana jest na III piętrze nowoczesnego bloku z cichobieżną windą. Mieszkanie składa się z salonu z aneksem kuchennym  o pow. 35,57mkw z wyjściem na balkon, pokoju o pow. 12,77mkw, sypialni o pow. 11,30mkw, łazienki z WC o pow. 5,42mkw oraz holu o pow. 8,65mkw. W cenie mieszkania jest komórka lokatorska o pow. 2,88mkw.

LOKALIZACJA:
Atrakcyjna lokalizacja. Budynek w otoczeniu lasów a jednocześnie blisko do centrum. Idealne miejsce do mieszkania, odpoczynku i spacerów wśród zieleni. W pobliżu przystanki autobusowe oraz atrakcyjna infrastruktura handlowa.

STANDARD ODDANIA:
Mieszkania oddane zostanie do samodzielnego wykończenia w zakresie malowania ścian i sufitów, okładzin ścian i podłóg, drzwi wewnętrznych oraz białego montażu.

 

OPIS BUDYNKU:
Mieszkanie znajduje się w
budynku 1-klatkowym z windą. Na poziomie piwnic komórki lokatorskie oraz  hala garażowa. 

DLACZEGO
 WARTO:
Każde mieszkanie wyposażone jest w system indywidualnej automatyki cieplnej (indywidualne stacje mieszkaniowe), który zapewnia oszczędne i efektywne wykorzystanie energii cieplnej. Ciepło na potrzeby ogrzewania i przygotowania c.w.u. jest pobierane dopiero w momencie faktycznego zapotrzebowania na nie. Odpowiedni układ sterowania daje możliwość realizacji funkcji ogrzewania przez cały rok. Dodatkowy czynnik ekonomiczny wynika z faktu regulacji i dostosowania poboru ciepła i przygotowania c.w.u. do bieżącego zapotrzebowania.

Powierzchnia podana na rzucie mieszkania może różnić się minimalnie w opisie podanym przez biuro.

Budynek oddany do użytkowania I/2025 r.

Powierzchnia podana na rzucie mieszkania może różnić się minimalnie w opisie podanym przez biuro.

Więcej zdjęć oraz danych technicznych oferty, na naszej stronie www.villa-nieruchomosci.com nr oferty 6725

W ofercie biura posiadamy inne oferty z rynku pierwotnego zapraszamy do zapoznania się z ofertą na naszej stronie firmowej villa-nieruchomosci.com


Zainteresowała cię oferta? Nie trać czasu, zadzwoń!
Zapraszam na bezpłatną  prezentację 790-790-861 biuro 68-455-50-44

*** BEZPŁATNIE Pomagamy przy uzyskaniu kredytu.
*** Więcej ciekawych ofert na stronie firmowej villa nieruchomosci

*** Serdecznie zapraszamy do naszego biura: Zielona Góra  Al. Konstytucji 3 Maja 15
*** Nasze biuro jest bezpieczne dla klienta posiadamy licencje nr 9994 nadaną przez Ministra Infrastruktury, oraz obowiązkowe OC.
*** Wszelkie podane przez Pośrednika informacje nie są ofertą w rozumieniu art.66 Kodeksu Cywilnego 

Lokalizacja nieruchomości

Kalkulatory

Kalkulator kredytowy

Wysokość raty

PLN
%

Kalkulator kosztów

Taksa notarialna
(opłata notarialna)

Wniosek o wpis do KW

VAT od prowizji
agencji nieruchomości

VAT od taksy notarialnej
(opłaty notarialnej)

Prowizja agencji nieruchomości

Wypisy aktu notarialnego

Razem

Uwaga: mogą wystąpić dodatkowe opłaty za założenie księgi wieczystej oraz ustanowienie hipoteki.

PLN
PLN
PLN
PLN
PLN
%
PLN

Podobne oferty

Bez prowizji

Mieszkanie na sprzedaż

Zielona Góra, os. Czarkowo

3 pokoje 58 m2 8 990,00 zł/m2
Bez prowizji
Bez prowizji

Mieszkanie na sprzedaż

Zielona Góra, os. Czarkowo

2 pokoje 47 m2 9 490,00 zł/m2
Bez prowizji
Bez prowizji

Mieszkanie na sprzedaż

Zielona Góra, os. Czarkowo

3 pokoje 63 m2 8 390,00 zł/m2
Bez prowizji
Bez prowizji

Mieszkanie na sprzedaż

Zielona Góra, os. Czarkowo

3 pokoje 63 m2 8 600,79 zł/m2
Bez prowizji

Agent

Proszę wprowadzić poprawne imię i nazwisko
Proszę wprowadzić poprawny numer telefonu
Proszę wprowadzić poprawny adres e-mail
Proszę zaznaczyć wymagane zgody
Rozwiąż równanie:
20 4
Niepoprawny wynik