Mieszkanie na sprzedaż Zielona Góra, Centrum

3 pokoje
69.15 m²
10 121,48 zł/m2
parter
VN1-MS-6746
Oblicz ratę kredytu

699 900 zł

Mieszkanie na sprzedaż
Oferta na wyłączność

Szczegóły oferty

Symbol oferty VN1-MS-6746
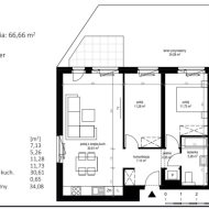
Powierzchnia 69,15 m²
Powierzchnia użytkowa [m2] 67,00 m²
Liczba pokoi 3
Liczba sypialni 3
Rodzaj budynku apartamentowiec
Technologia budowlana tradycyjna murowana
Piętro parter
Stan lokalu bardzo dobry
Okna PCV
Balkon taras
Liczba balkonów 1
Winda tak
Tarasy taras duży
Usytuowanie narożne
Drzwi antywłamaniowe tak
piwnica tak
Pomieszczenia
Powierzchnia pokoi 30,61:11,73:11,28 m2
Podłogi pokoi panele
Typ kuchni otwarta na salon
Rodzaj kuchni aneks kuchenny - połączony z salonem
Podłoga kuchni panele
Liczba łazienek 5
Glazura łazienki nowego typu
Wyposażenie łazienki lustro, umywalka, wanna, WC
Powierzchnia przedpokoi 7,13 m2
Julita Szymańska

Julita Szymańska


Nr licencji: 9994

Napisz wiadomość 39 Ofert

Opis nieruchomości

ZADZWOŃ I UMÓW SIĘ NA BEZPŁATNĄ PREZENTACJĘ ZAPRASZAM DO WSPÓŁPRACY ---600-181-433---

PRZESTRONNE I SŁONECZNE TRZY POKOJE Z OGRÓDKIEM

Na sprzedaż nowoczesne trzy pokojowe mieszkanie o powierzchni– 67 m, położone na nowym, kameralnym osiedlu przy ul. Jana z Kolna. Budynek jest bardzo estetyczny, reprezentacyjny i wykonany w nowoczesnym standardzie.

Mieszkanie jest częściowo wykończone, co daje nowemu właścicielowi możliwość aranżacji wnętrza według własnych potrzeb i gustu. Na podłogach położono elegancki panel  w jodełkę, który nadaje wnętrzu ponadczasowego charakteru. Ściany wykończone są gładziami, część pomieszczeń została już pomalowana.

Układ pomieszczeń:
-przestronny salon z aneksem kuchennym – 30,61 m²,
-kuchnia otwarta na salon z częściowo wykonaną zabudową,
-dwa ustawne pokoje:11,73 m²oraz 11,28 m²
-duża łazienka – 5,26 m², urządzona w nowoczesnym stylu, z efektownym, panoramicznym lustrem,
-pomieszczenie gospodarcze / pralnia  która jest praktycznym atutem mieszkania.

Ogromnym walorem nieruchomości jest prywatny ogródek o powierzchni aż 34,08m², idealny do wypoczynku, spotkań z rodziną czy aranżacji strefy relaksu.

Do mieszkania zostały już zakupione eleganckie  drzwi wewnętrzne, które czekają na montaż. Nowe są również oświetlenie oraz włączniki – wszystko gotowe do wykończenia według własnej wizji.

Istnieje możliwość dokupienia miejsca postojowego.

To idealna propozycja dla osób szukających nowoczesnego mieszkania z ogródkiem, w świetnej lokalizacji, z dużym potencjałem aranżacyjnym.

Serdecznie zapraszam na prezentacje, mieszkanie dostępne tylko u nas w biurze!

Więcej danych technicznych oraz zdjęć nieruchomości na naszej stronie nr oferty 6746

Zainteresowała Cię ta oferta? Nie trać czasu, zadzwoń! Zaproponuj swoją cenę! Zapraszam na prezentację 600-181-433 biuro 68-455-50-44

***BEZPŁATNIE pomagamy przy kredycie w ofercie mamy ponad 21 banków
*** Serdecznie zapraszamy do naszego biura: Zielona Góra Al. Konstytucji 3 Maja 15
*** Nasze biuro jest bezpieczne dla klienta posiadamy licencje nr 9994 nadaną przez Ministra Infrastruktury!
***Wszelkie podane przez Pośrednika informacje nie są ofertą w rozumieniu KC

 

Kalkulatory

Kalkulator kredytowy

Wysokość raty

PLN
%

Kalkulator kosztów

Podatek od czynności cywilno-prawnych

Taksa notarialna
(opłata notarialna)

Wniosek o wpis do KW

VAT od prowizji
agencji nieruchomości

VAT od taksy notarialnej
(opłaty notarialnej)

Prowizja agencji nieruchomości

Wypisy aktu notarialnego

Razem

Uwaga: mogą wystąpić dodatkowe opłaty za założenie księgi wieczystej oraz ustanowienie hipoteki.

PLN
PLN
PLN
PLN
PLN
PLN
%
PLN

Podobne oferty

Bez prowizji

Mieszkanie na sprzedaż

Zielona Góra, Centrum

3 pokoje 67 m2 9 359,70 zł/m2
Bez prowizji
Bez prowizji

Mieszkanie na sprzedaż

Zielona Góra, Centrum

3 pokoje 67 m2 9 359,75 zł/m2
Bez prowizji
Bez prowizji

Mieszkanie na sprzedaż

Zielona Góra, Centrum

3 pokoje 64 m2 9 362,48 zł/m2
Bez prowizji
Bez prowizji

Mieszkanie na sprzedaż

Zielona Góra, Centrum

4 pokoje 75 m2 9 253,38 zł/m2
Bez prowizji

Proszę wprowadzić poprawne imię i nazwisko
Proszę wprowadzić poprawny numer telefonu
Proszę wprowadzić poprawny adres e-mail
Proszę zaznaczyć wymagane zgody
Rozwiąż równanie:
13 3
Niepoprawny wynik